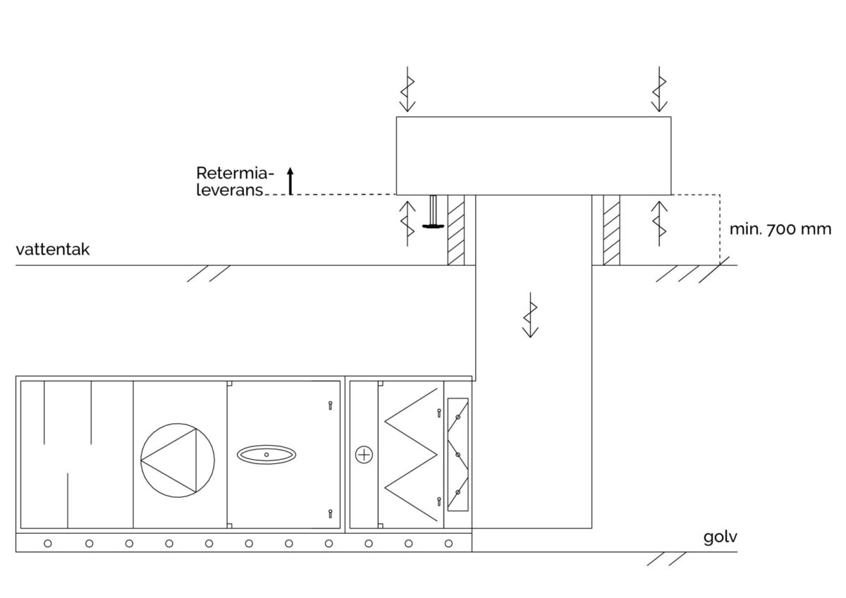
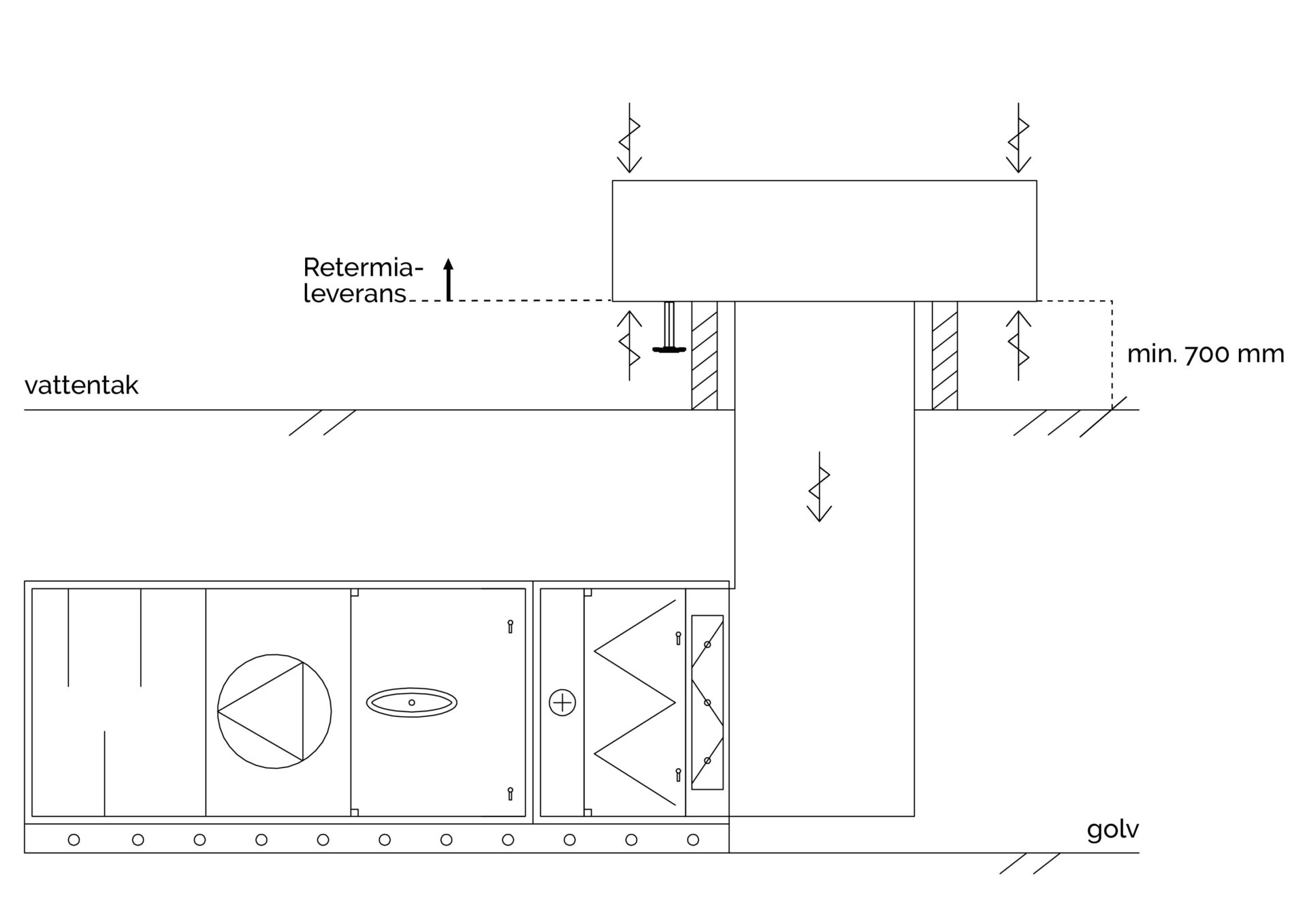
En LUFTINTAGSHUV är en nålvärmeväxlare som lämpar sig för krävande väderförhållanden. Den är enkel att lägga till ventilationssystemet i en befintlig byggnad. Luftintagshuven placeras på byggnadens vattentak, antigen ovanpå en stödpipa av konstruktionsmaterial eller en stödkonstruktion.
Installationsprincip för luftintagshuv
Fördelar
- Lätt att lägga till ventilationssystemet i en befintlig byggnad. Luftintagshuven installeras i stället för den gamla luftintagsenheten.
- Även lämplig för krävande väderförhållanden (kraftiga vindar, kraftigt regn, snöyra). Uteluft tas till nålvärmeväxlaren från enhetens övre och nedre kanter. Vindtrycket har ingen inverkan på luftintaget eller tilluftsfläktens funktion.
- Sparar utrymme i tilluftsaggregatet och minskar ventilationssystemets SFP-värde. Värmeåtervinning, kyla och värmebatterier kan placeras på byggnadens vattentak.
- Lågt tryckfall på luftsidan. Effektiv värmeåtervinning utan att slösa med el.
- Linjär värmeöverföringsförmåga som funktion av luft- och vätskeflöde. Möjliggör gemensam värmeåtervinning och/eller kylning för flera tilluftsaggregat med lågt luftflöde.
Mått, struktur och funktion
LUFTINTAGSHUVENS yttermått bestäms av luftflöde och det utrymme som finns tillgängligt. För detaljerad information om enheten, se de projektspecifika dimensioneringsdokumenten.
Värmeöverföringsytan är böjd i en U-form, vilket ökar värmeväxlarens ytarea. Nålytan fungerar som ett G3-förfilter.
Ett finfilter för tilluften kan också installeras i en LUFTINTAGSHUV, vilket gör enheten till en LUFTBEHANDLINGSHUV. Finfiltret är placerat efter nålvärmeväxlaren.
Nålvärmeväxlarens nålar är av aluminium, rören är av aluminium eller koppar och samlingsrören är av koppar. Nålrören är utrustade med interna turbulatorer för att förbättra värmeöverföringen på vätskesidan. Luften leds genom en nålvärmeväxlare. Vätskan i nålröret värmer eller kyler luften.
LUFTINTAGSHUV kan även tillverkas av färgad plåt. Nålvärmeväxlaren kan korrosionsskyddas.
Preliminärt val av utrustning
Nedan finns en tabell med ungefärliga mått och vikter. Andra yttermått än de som visas i tabellen är också möjliga. De exakta måtten på VÅV-enheten finns i de projektspecifika dimensioneringsdokumenten.
Luftintagshuvens yttre mått: | |||||||||||||||||||
|---|---|---|---|---|---|---|---|---|---|---|---|---|---|---|---|---|---|---|---|
luftvolym l/s | bredd mm | längd mm | höjd mm | vikt kg | |||||||||||||||
300-650 | 1850 | 1850 | 350-600 | 100-200 | |||||||||||||||
650-1400 | 2000 | 2000 | 400-700 | 150-300 | |||||||||||||||
1400-2000 | 2100 | 2200 | 500-1000 | 200-500 | |||||||||||||||
2000-4000 | 2300 | 2550 | 700-1200 | 300-700 | |||||||||||||||
Underhåll
Nålvärmeväxlare rengörs genom dammsugning och med hjälp av en högtryckstvätt.
Underhållet av luftintagshuven utförs via av en servicelucka som kan öppnas uppifrån. Friskluftskanalen kan rengöras genom VÅV-enheten. Enheten är utrustad med uppsamlingstråg och dräneringsanslutningar.