RETCARE IN S on energiatehokas sisäasenteinen tuloilmakonesarja ilmamääräalueelle 0,5–3 m³/s.
RETCARE IN S -tuloilmakone on kompakti ja tarvitsee minimaalisen lattiapinta-alan.
Edut
- Pieni tilantarve. Esimerkiksi 1000 l/s ilmavirralla toimiva kone tarvitsee vain neliön verran lattiapinta-alaa.
- Markkinoiden energiatehokkain. Hyvin pienet sisäiset vastukset tarkoittavat poikkeuksellisen pientä SFP-lukua: 0,5–0,8 kW/m³/s kanaviston sekä LTO- ja jäähdytyspattereiden painehäviöstä riippuen.
- Hiljainen. Useimmissa kohteissa ei tarvita erillistä konehuonetta.
- Helppo asentaa. RETCARE IN S -kone on helposti haalattavissa asennuspaikalle ja nopea asentaa.
- Toimintavarma ja huoltoystävällinen. Huolto on mahdollista suorittaa myös talvella.

Laitevalinta
RETCARE IN S -tuloilmakoneesta on useita eri konekokoja. Konekoko määräytyy ilmamäärän perusteella. Koneessa käytetään tyypillisesti EC-moottorilla varustettuja puhaltimia.
RETRCARE IN S -koneen alustava valintataulukko | ||||||||
---|---|---|---|---|---|---|---|---|
ilmamäärä l/s | leveys mm | pituus mm | korkeus mm | paino kg | ||||
500-1200 | 1600 | 800 | 2200 | n. 400 | ||||
1000-1700 | 1600 | 1100 | 2200 | n. 450 | ||||
1400-2400 | 2200 | 1100 | 2300 | n. 550 | ||||
1800-3100 | 2200 | 1400 | 2300 | n. 600 |
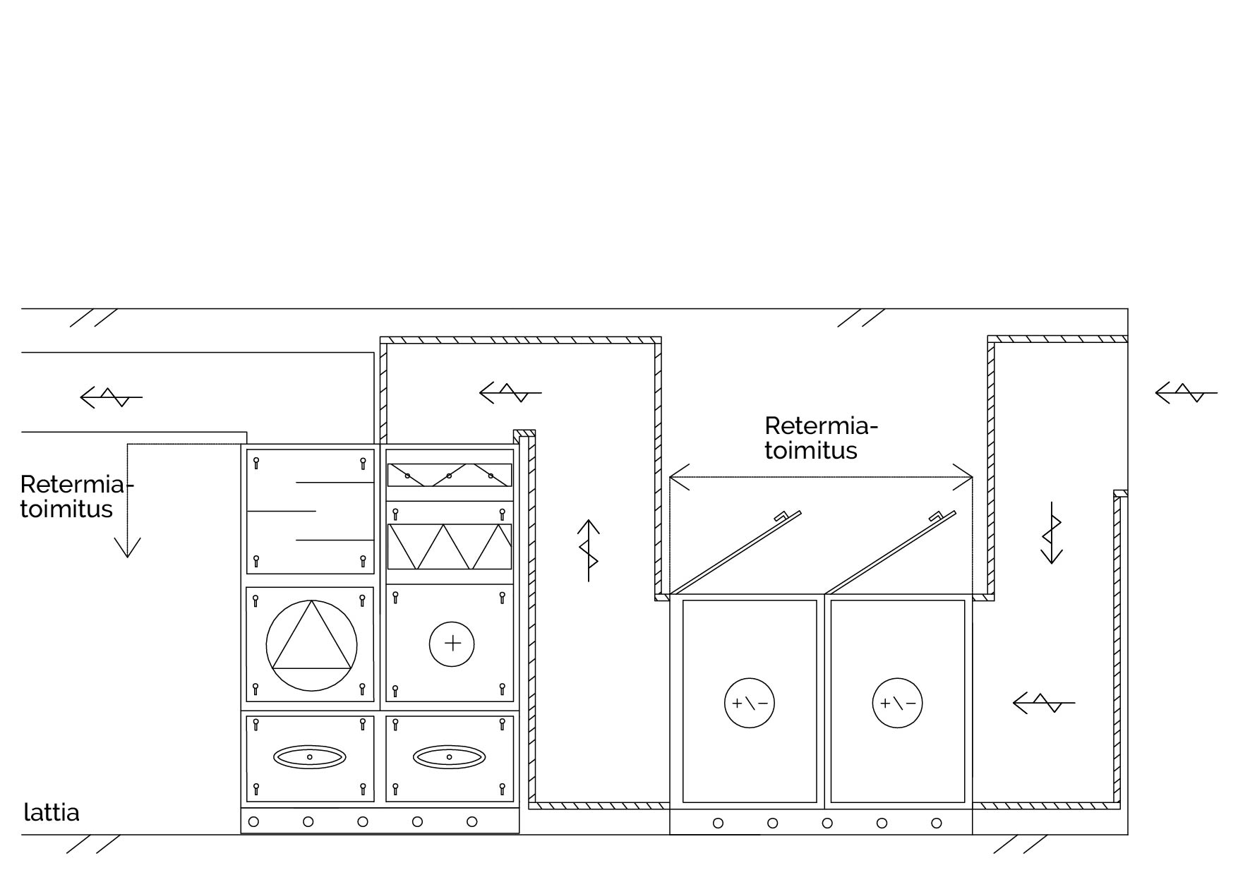
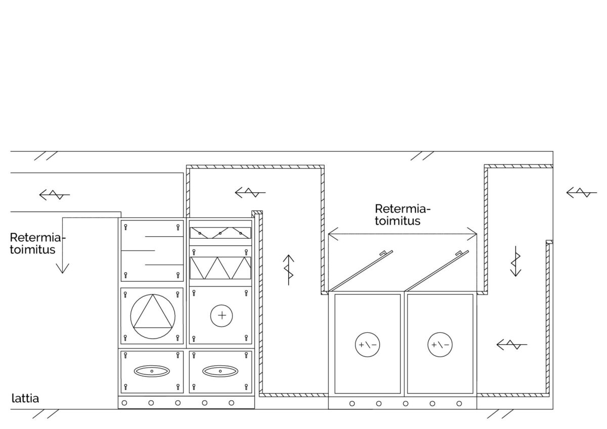
Rakenne ja toiminta
Kone koostuu kahdesta pystyosasta sekä pohjaosasta. Se voidaan haalata kolmessa osassa asennuspaikalle.
Ilman virtaussuunnassa ensimmäisessä pystyosassa ovat sulkupelti-, suodatus- ja lämmitystoiminnot. Pääsuodattimen suodatusluokka voidaan valita M5-F9 väliltä.
Suodatinta ennen sijaitsevat neulalämmönsiirtimet toimivat myös G3-tason esisuodattimina. Toisessa pystyosassa ovat puhallin- ja äänenvaimennustoiminnot. Konejalustalla varustetussa pohjaosassa on pesuvesiallas ja viemäröintiyhde. Pohjaosassa tuloilma siirtyy pystyosasta toiseen.
Lämmönsiirtiminä toimivat neulalämmönsiirtimet, joissa neulat ovat alumiinia, putket ovat alumiinia tai kuparia ja jakotukit kuparia. Lämmöntalteenotto- ja jäähdytyspatterit sijaitsevat koneen ulkopuolella: vesikatolla, ulkoseinässä, ilmakammiossa tai kanavassa.
Kone on varustettu antureilla ja puhallin turvakytkimillä. Rungon eristeenä on käytetty mineraalivillaa (eristepaksuus 50 mm).
Koneen kätisyyttä voidaan muuttaa työmaalla vaihtamalla pystyosien keskinäistä paikkaa.
Raitis- ja tuloilman kanavalähdöt sijaitsevat koneen päällä ja lämmityspatterin putkiyhteet koneen takana. Liuoskytkentöjä varten koneen ja seinän väliin tulisi jäädä riittävä (vähintään 200 mm) kytkentätila.
Huolto
Ilmanvaihtokoneiden neulalämmönsiirtimet puhdistetaan imuroimalla ja korkeapainepesurilla.
Koneen huolto tapahtuu koneen etupuolelta. Kaikki toiminto-osat ovat huollettavissa huoltoluukkujen kautta. Huollon suorittamista varten koneen huoltopuolella tulisi olla vähintään koneen pituuden verran vapaata tilaa.

RETCARE IN S -tuloilmakoneen huolto tapahtuu koneen edestä.
Koneen kätisyyttä voidaan muuttaa työmaalla.